中央空调案例-联体别墅-大金


[ 原创 ] 作者:   发表时间:2010/1/22 0:00:00

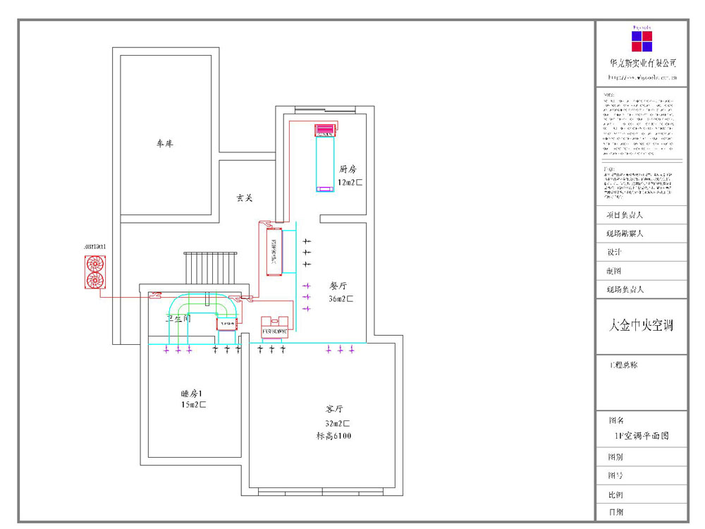
    爱伦坡联体3层别墅中央空调安装工程空调使用面积为211平方米。在与业主沟通时,业主提出使用空调要操作简单,噪音要小,故推荐选用大金VRVⅢ直流变频中央空调系统。大金VRVⅢ采用直流变频技术,能有效提高能源效率;在运转过程中,能根据室外温度及系统运行状况采用最佳化霜时机。大金空调控制器为液晶面板操作,简便易操作,与房间内电气开关搭配和谐。大金VRVⅢ空调室内机形式多样,选型自由,在低速运转时噪音仅为35分贝。在设计中,为配合装潢吊顶,在卧室和卫生间选用大金天花板内藏风管式(超薄型),其机身厚度仅有200mm;客厅因层高达4米以上,选用内藏风管导管式,使用效果完全达到业主要求。

爱伦坡联体别墅中央空调安装平面图1F
(点击查看大图)

爱伦坡联体别墅中央空调安装平面图2F
(点击查看大图)

爱伦坡联体别墅中央空调安装平面图3F
(点击查看大图)

爱伦坡联体别墅中央空调安装负荷配置